Pohjantie 5 Jyväskylä

Puurakenteinen, moderni talo suurilla ikkunoilla ja tummalla katolla harmaassa säässä.
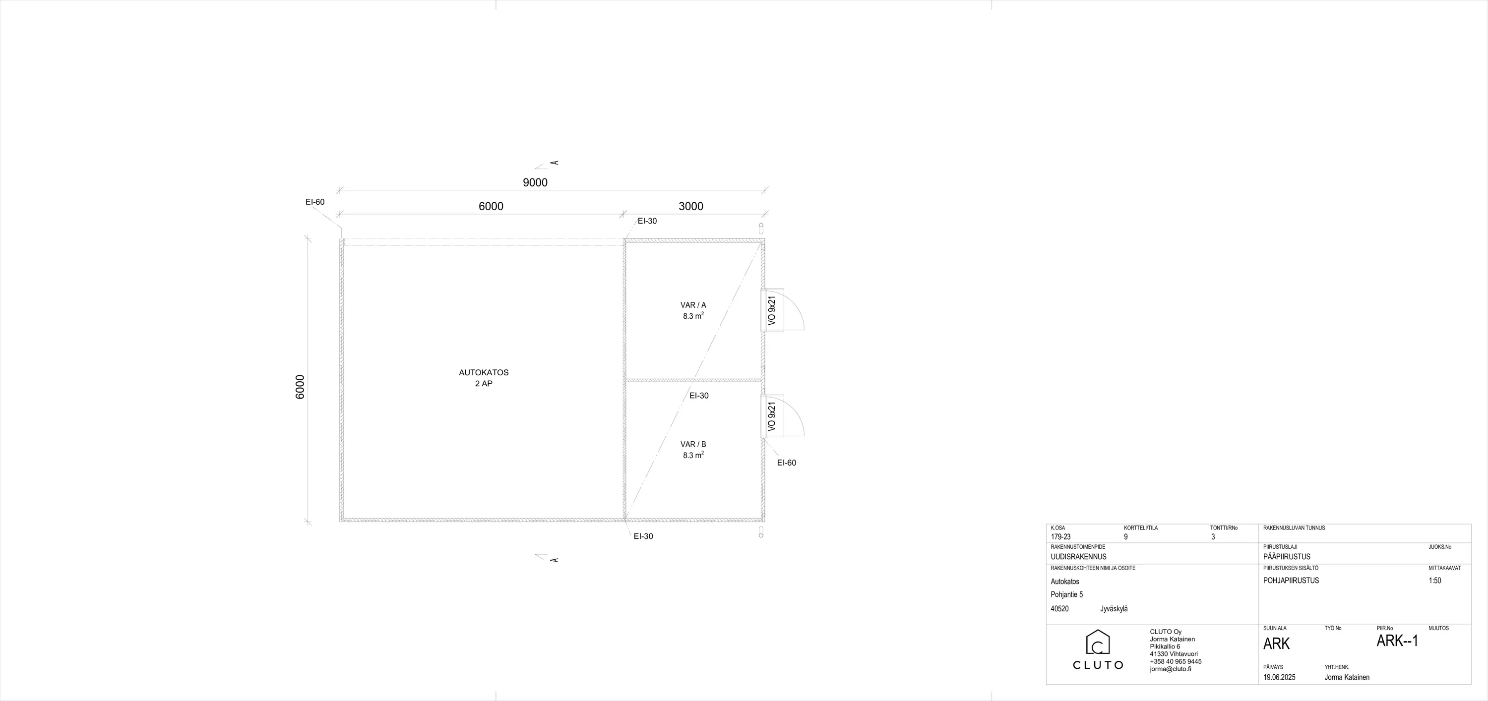
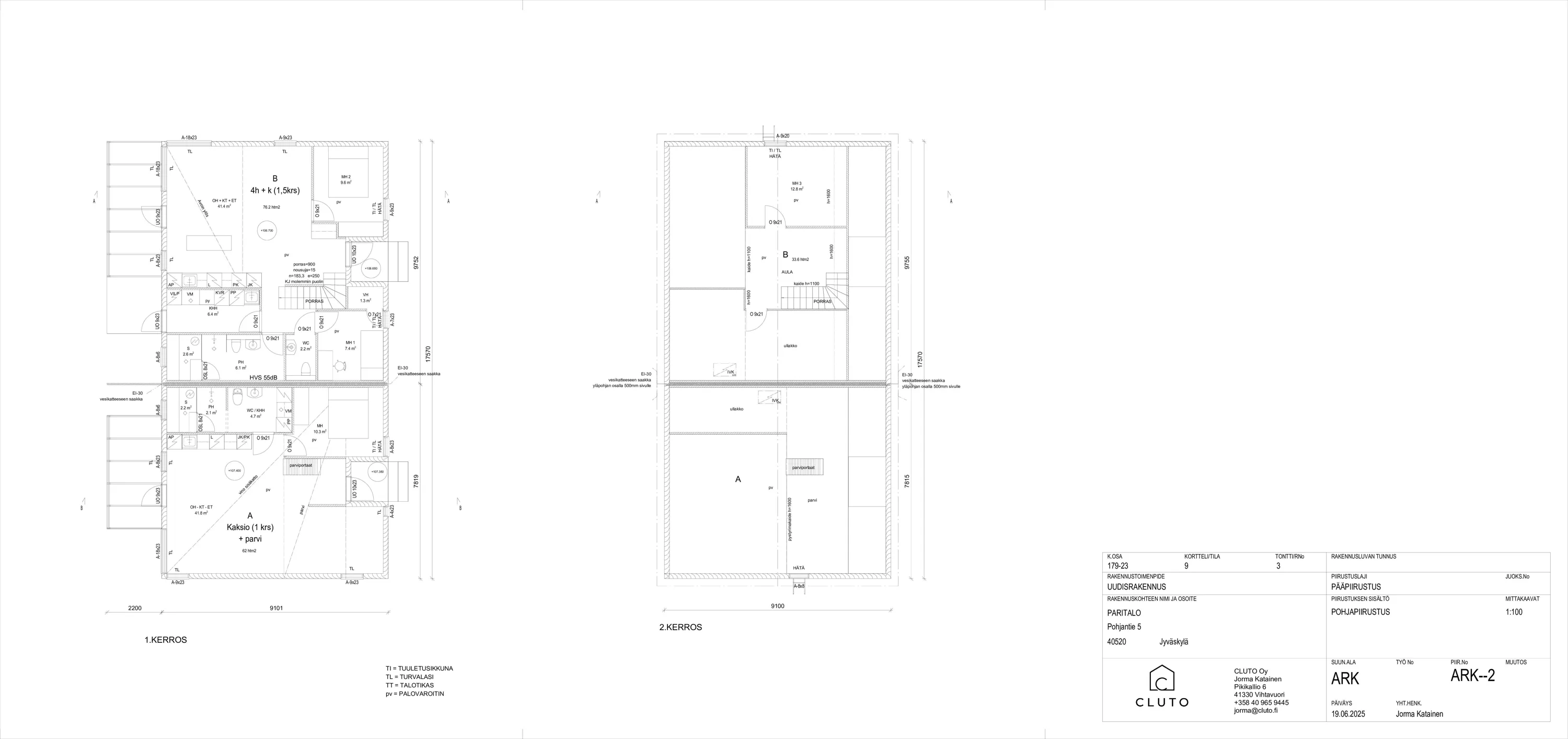
Asemapiirros paritalosta, jossa näkyy tontin rajat, rakennukset, autokatos ja viheralueet. Piirroksessa on myös teknisiä tietoja rakennusoikeudesta ja hulevesisuunnitelmasta.Arkkitehtoninen piirustus, jossa on neljä julkisivukuvaa rakennuksesta, jossa on merkitty osat numeroilla ja julkisivuvärien selitykset, sekä tietoja rakennusluvasta ja yrityksen tiedot.Arkkitehtoninen piirustus autokatoksesta, jossa on mittoja ja rakennustyyppejä.Pohjapiirros autokatoksesta, jossa kaksi varastotilaa, mitat 9000 x 6000 mm, varastotilojen pinta-alat 8,3 m², ovet VO 9x21, seinien palonkestävyysluokat EI-30 ja EI-60.Arkkitehtoninen julkisivupiirustus, jossa näkyy neljä eri rakennuksen julkisivua eri suunnista: pohjoisesta, etelästä, lännestä ja idästä. Piirustuksessa on myös mittamerkintöjä ja väriseloste.Arkkitehtoninen piirustus, jossa näkyy talon leikkauskuva, rakenneosat ja mitat, sekä tekniset tiedot.Arkkitehtoninen piirustus, jossa näkyy kaksikerroksisen paritalon pohjapiirros, jossa on merkitty huoneiden koot ja materiaalit.Puurakenteinen, moderni talo suurilla ikkunoilla ja tummalla katolla harmaassa säässä.Kaaviokuva tontista, jossa näkyy rakennuksia, mittoja ja tekstejä, kuten "VARATTU" ja "MYYNNISSÄ".

Pyydä tarjous tai kysy lisää!

Ota meihin yhteyttä ja kartoitetaan yhdessä paras ratkaisu juuri sinun rakennusprojektiisi.
Kilpailukykyinen hinnoittelu
Usean vuoden kokemus
Laadukas lopputulos
Asiakaslähtöinen toiminta
WhatsApp Profile Images
Jorma
CLUTO Oy
Jorma
Hei! 👋
Voinko olla avuksi?
Aloita keskustelu